Dom na sprzedaż z potencjałem Ostróda
Ostróda Pokaż na mapie ›
Dodane: Piątek, 20 Marzec, 2026 20:06
689 000 zł
3983 zł/m2
Szczegóły ogłoszenia
- Kategoria: Domy / Sprzedaż
- Powierzchnia:173 m2
- Liczba pokoi:5 i więcej pokoi
- Pow. działki:4545 m2
- Rynek:Wtórny
- Rok budowy:1982
- Sprzedaż:Pośrednik
- Cena: 689 000 zł / 3983 zł/m2
Opis oferty
Warmińsko-mazurskie, Ostróda - na sprzedaż dom z 1982 roku,solidnie wybudowany z bloczków – czyli klasyka, która przetrwa
więcej niż niejeden współczesny trend.
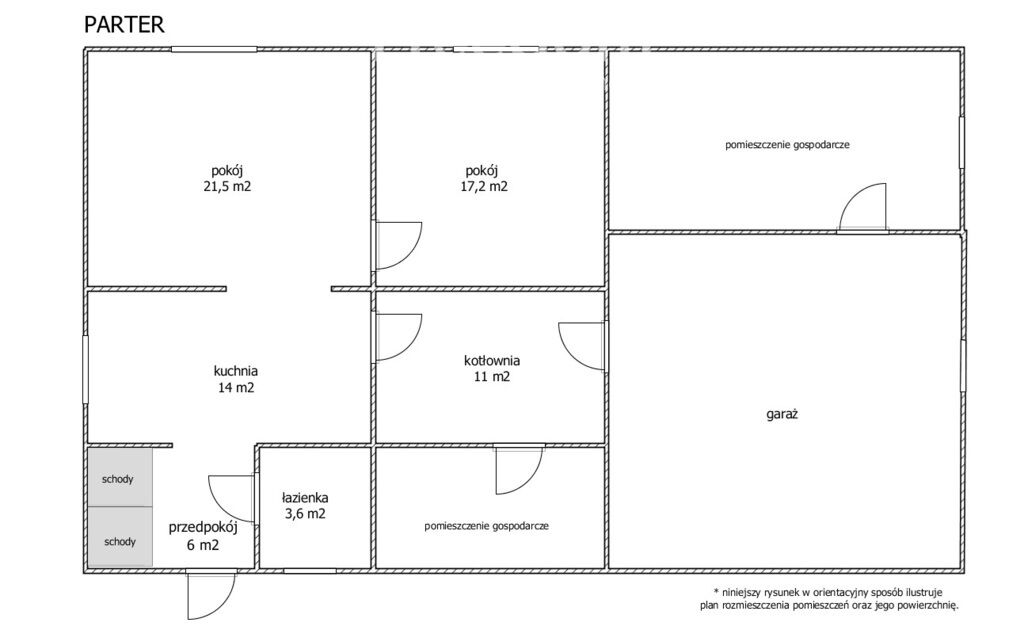
Nieruchomość oferuje aż 143 m² powierzchni użytkowej, na którą
składa się: 6 pokoi, kuchnia, dwie łazienki, kotłownia oraz
pomieszczenia gospodarcze.
Dom wymaga remontu – nie ma co ukrywać. ALE to nie jest ruina. To
przestrzeń, w której możesz normalnie mieszkać i stopniowo robić
wszystko pod siebie. Bez presji, bez wynajmowania czegoś na chwilę.
I co ważne – dach jest szczelny, więc na głowę nic nie kapie.
W bryle budynku znajduje się garaż, a także dodatkowa przestrzeń
na wszystko to, co może się kiedyś przydać (a jak wiemy –
przydaje się zawsze).
Dom usytuowany jest na działce 496 m², ale to dopiero początek —
do dyspozycji masz dodatkowe 4049 m² terenu.
I tutaj zaczyna się zabawa: działka ma przeznaczenie
mieszkaniowo-usługowe, więc możesz stworzyć tu warsztat,
pracownię, drugi dom, a nawet małe rodzinne osiedle (teściowie,
dzieci, wnuki – każdy znajdzie swój kąt).
Ogrzewanie? Do wyboru, do koloru: piec na węgiel i drewno dla
tradycjonalistów oraz podłączenie gazu dla tych, którzy cenią
wygodę.
Na dachu styropapa – praktyczne rozwiązanie na lata.
To miejsce z potencjałem – zarówno do zamieszkania, jak i do
realizacji własnych pomysłów na biznes czy przestrzeń życia.
Szczegóły oferty: Freedom Iława Kopernika, Iwona Taciak tel. 509
958 920
* Do ceny nieruchomości należy doliczyć koszty okołotransakcyjne.
"Właścicielem ogłoszenia wraz z jego elementami jest Freedom
Nieruchomości Sp. z o.o. lub podmioty współpracujące. Wszelkie
prawa zastrzeżone. Kopiowanie, rozpowszechnianie oraz korzystanie z
niniejszych materiałów w jakikolwiek inny sposób wykraczający poza
dozwolony użytek określony przepisami ustawy z 4 lutego 1994 r. o
prawie autorskim i prawach pokrewnych (Dz. U. 1994, nr 24 poz. 83 z
późn. zm.) bez pisemnej zgody Freedom Nieruchomości Sp. z o.o. lub
podmiotów współpracujących jest zabronione i może stanowić
podstawę odpowiedzialności cywilnej oraz karnej.
Ponadto niniejsze materiały stanowią tajemnicę przedsiębiorstwa
Freedom Nieruchomości Sp. z o.o. lub podmiotów współpracujących w
rozumieniu ustawy z dnia 16 kwietnia 1993 r. o zwalczaniu nieuczciwej
konkurencji (Dz. U. z 2003 r., Nr 153, poz. 1503 z późn. zm.).
Niniejsze ogłoszenie nie stanowi oferty w rozumieniu Kodeksu
Cywilnego, lecz ma charakter informacyjny."
Sprawdź zainteresowanie tym ogłoszeniem
Wyświetlenia
Data dodania
Ostatnio widziany
Obserwujących
Wysłane zapytania
Odsłony telefonu
Powiadom o podobnych ogłoszeniach
Lokalizacja: Ostróda
Kategoria: Nieruchomości » Domy » Sprzedaż
Cena: od 585500 zł do 792500 zł Powierzchnia : od 147 m2 do 199 m2
Chcę otrzymywać powiadomienia o nowych ofertach
Iwona Taciak
Konto firmowe
Na Lento.pl od 02 sty 2024
Odpowiada szybko
Strona użytkownika
- Wypromuj ogłoszenie
- Zgłoś naruszenie
- Drukuj ulotkę
- Edytuj/usuń ogłoszenie
- Udostępnij ogłoszenie
- Dodaj na Facebook















